TD75型通用帶式輸送機
TD75型通用帶式輸送機廠家 TD75型通用帶式輸送機價格TD75型通用帶式輸送機哪里最優,哪里質量最好,通過質量檢驗,煤安認證就來濟寧卓力工礦設備有限公司!聯系電話:【18953724511】【18605374511】TD75型帶式輸送機產品概述:TD75型皮帶輸送機由于輸送量大,結構簡單,維護方便,成本低,通用性強等優點,而被廣泛地應用在···
TD75型通用帶式輸送機哪里最優,哪里質量最好,通過質量檢驗,煤安認證就來濟寧卓力工礦設備有限公司!聯系電話:【18953724511】【18605374511】
TD75型帶式輸送機產品概述:
TD75型皮帶輸送機由于輸送量大,結構簡單,維護方便,成本低,通用性強等優點,而被廣泛地應用在冶金、礦山、煤炭、港口、交通、水電、化工等部門,進行裝車、裝船、轉載或堆積各種常溫狀態的松散密度為500~2500kg/m3各種散狀物料或成件物品.由單機或多機組合成運輸系統來輸送物料,根據工藝要求可布置成水平或傾斜的形式。該系列皮帶輸送機允許輸送的物料塊度取決于帶寬、帶速、槽角和傾角,也取決于大塊物料出現的頻率.該系列輸送機適用的工作環境溫度一般為-25~+40℃。

皮帶輸送機是一種輸送量大、運行費用低、使用范圍廣的輸送設備,按其支架結構有固定式和移動式兩種;按輸送材料有膠帶、塑料帶和鋼帶之分。輸送機的工作環境溫度一般在-10℃-+40℃之間,要求物料溫度不超過70℃;耐熱橡膠帶可輸送120℃以下的高溫物料。物料溫度更高時不宜采用膠帶輸送機。當輸送具有酸性堿性油類物質和有機溶劑等成分的物料時,需采用耐油、耐酸堿的橡膠帶或塑料帶。皮帶輸送機的帶寬有六種:500、650、800、1000、1200和1400mm。用戶可根據皮帶輸送機的輸送高度,物料的種類、容量、輸送量、輸送長度等諸因素通過計算確定輸送機的布局以及所選用的膠帶寬度、帆布層數和膠帶厚度。
TD75型帶式輸送機產品概述:
DTⅡ、TD75型皮帶輸送機由于輸送量大,結構簡單,維護方便,成本低,通用性強等優點,而被廣泛地應用在冶金、礦山、煤炭、港口、交通、水電、化工等部門,進行裝車、裝船、轉載或堆積各種常溫狀態的松散密度為500~2500kg/m3各種散狀物料或成件物品.由單機或多機組合成運輸系統來輸送物料,根據工藝要求可布置成水平或傾斜的形式,DTⅡ型皮帶輸送機除了可滿足水平或傾斜輸送要求外,還可采用帶凸弧段、凹弧段與直線段組合的輸送形式.輸送機允許輸送的物料塊度取決于帶寬、帶速、槽角和傾角,也取決于大塊物料出現的頻率.該輸送機適用的工作環境溫度一般為-25~+40℃.我公司還生產輕型皮帶輸送機和移動式輸送機。
TD75型帶式輸送機基本布置形式:
1.水平輸送。2.傾斜輸送機。3.帶凸弧曲形段輸送機。4.帶凹弧曲形段輸送機。5.帶凹弧及凸弧曲形段輸送機。
TD75型帶式輸送機基本結構:
1、驅動部分:由裝置在型鋼焊成的底座上的電動機-->高速聯軸器-->減速器-->減速聯軸器組成。
2、滾動部分:分傳動滾筒和改向滾筒兩大類。
3、托輥部分:分槽形、平行、調心和緩沖托輥等。
4、清掃部分:分彈簧清掃器和空段清掃器。
5、卸料部分:分固定式犁式卸料器和電動卸料器。
6、制動部分:有帶式逆止器和滾柱逆止器兩種。
7、附件:在罩殼、導料槽、漏斗等。
TD75型通用固定帶式輸送機工作特點:
1、輸送平穩,物料與輸送帶沒有相對運動,能夠避免對輸送物的損壞。
2、噪音較小,適合于工作環境要求比較安靜的場合。
3、結構簡單,便于維護。能耗較小,使用成本低。
TD75型通用固定帶式輸送機輸送能力表:
斷面(承載托輥)形式 | 帶速(m/s) | 帶寬B(mm) |
500 | 650 | 800 | 1000 | 1200 | 1400 |
輸送能力G(t|h) |
槽型托輥 | 0.8 | 78 | 131 |
|
|
|
|
1.0 | 97 | 164 | 278 | 435 | 655 | 891 |
1.25 | 122 | 206 | 348 | 544 | 819 | 1115 |
1.6 | 156 | 264 | 445 | 696 | 1048 | 1427 |
2.0 | 191 | 323 | 546 | 853 | 1284 | 1748 |
2.5 | 232 | 391 | 661 | 1033 | 1556 | 2118 |
3.15 |
|
| 824 | 1233 | 1858 | 2528 |
4.0 |
|
|
|
| 2202 | 2996 |
平行托輥 | 0.8 | 41 | 67 | 118 |
|
|
|
1.0 | 52 | 88 | 147 | 230 | 345 | 469 |
1.25 | 66 | 110 | 184 | 288 | 432 | 588 |
1.6 | 84 | 142 | 236 | 368 | 553 | 753 |
2.0 | 103 | 174 | 289 | 451 | 677 | 922 |
2.5 | 125 | 131 | 350 | 546 | 821 | 1117 |
TD75型通用固定皮帶輸送機功率選型表:(供參考)(KW)
長度m | 15 | 30 | 45 | 60 | 100 | 150 | 200 | 300 |
寬度mm | 500 | 1.0 | 1.3 | 1.7 | 2. | 3.2 | 4.6 | 8.0 | 11.1 |
650 | 1.3 | 1.9 | 2.4 | 2.8 | 4.6 | 9.2 | 11.5 | 16.0 |
800 | 1.9 | 2.9 | 3.6 | 4.3 | 9.7 | 14.0 | 17.5 | 24.3 |
注:以上功率估算的工作條件為正常濕度,水平帶速1m/s,物料容量1t/m3,動堆積角30°,一個空段清掃器,一個彈簧清掃器和一個導料槽并考慮加速阻力因素。每個犁式卸料器需功率約為B500:0.3KW;B650:0.35kw;B800:0.45KW。
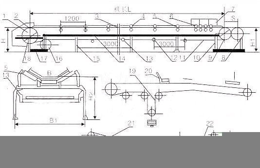
TD75型通用固定皮帶輸送機外形尺寸圖表:
1、傳動滾筒;2、頭罩;3、輸送帶;4、槽型調心托輥;5、槽型托輥;6、緩沖托輥;7、導料槽;8、螺旋拉緊裝置;9、改向滾筒;10、尾架;11、空段清掃器;12、下平調心托輥;13、下托輥;14、中間架;15、中間支腿;16、改向滾筒;17、頭架;18、彈簧清掃器;19、垂直拉緊裝置;20、犁式卸料器;21、卸料車;22、車式拉緊裝置
B | D | A | L | H | C | E | d | 軸承型號 |
500 | 89 | 720 | 190 | 170 | 130 | 15 | M12 | 204 |
650 | 870 | 240 |
800 | 1070 | 305 |
1000 | 108 | 1300 | 375 | 210 | 170 |
|
|
|
1200 | 108 |
|
|
|
| 18 | M12 | 305 |
1400 | 108 |
TD75型通用固定皮帶輸送機傳動功率配套表:
傳動型式 | 功率范圍(kw) | 備注 |
彈性聯軸器直接傳動 | 2.2~37 | 功率≤200kw時電壓為380V 功率≥220kw時電壓為6000V |
Y系列電機加液力偶合器 | 45~315 |
電動滾筒直接傳動 | 2.2~55 |
繞線式電機 | 220~800 |
注:本產品資料由 濟寧卓力工礦設備有限公司編輯整理,如有錯誤請與公司技術人員聯系。該資料僅供設備選型參考使用。
TAG:
如果您正在尋找相關產品或有其他任何問題,可隨時撥打我公司服務電話,或點擊下方按鈕與我們在線交流!